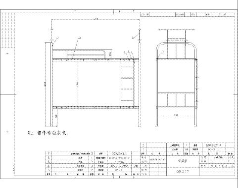
广东培正学院就采购学生公寓用家具项目进行招标,现接受合格的国内投标人投标。 一、 招标内容 1、上下双层铁架床210张(共420个位),请按附图(详见附件一)所示的用料规格,材质,产品规格,尺寸等制作样板,并单独报价。(必须严格按照图纸要求报价和提供评标所需样板). 2、办公电脑两用桌210张,请按附图(详见附件二)所示的用料规格,材质,产品规格,尺寸等制作样板,并单独报价。(必须严格按照图纸要求报价和提供评标所需样板). 3、投标厂商均需随标书一起送本厂的样板到我院指定的场地展示,请自备搬运安装人员。投标厂商可全部或单独投标以上两种物品中的任何一种。 二、 投标人资格要求 1、在广东省设有正式注册服务机构的法人或其他组织; 2、必须为投标产品的生产厂家或代理经销商; 3、若投标人为代理经销商,必须持有厂家出具的代理证书、《授权投标确认书》等证明材料,并由厂家承担对代理商提供的产品及服务质量的保证责任,若代理商无法提供售后服务时,将由厂家负责提供招标文件中及合同书中要求的售后服务,并出具证明; 三、 投标单位提供的文件内容包括: 1、投标单位简介; 2、明细报价,结算方式,相关图纸,施工工期(包括制作工期,现场安装工期),售后服务等内容,请放在公司简介页后面,以利查找; 3、营业执照、税务登记证正副本复印件及其他资质证书复印件(加盖本企业法人公章); 4、安装期:学院要求为2009年8月25日安装完毕; 5、验收方法:按双方签订合同和图纸中的各项要求进行验收。 6、其他需要说明及展示投标单位实力的资料。 四、所有投标书一式五份均应密封并有专人在2010年 7 月 28 日下午5点之前送达广东培正学院采购中心(送标书时带营业执照副本原件),随送样板安装完毕,否则将作为废标处理。 五、 开标:时间2010年 8月 上 旬,由我院组织评标小组开标讨论,中标结果将公布于学院校园网采购中心主页(http://www.peizheng.net.cn/cgzx/Index.html),请留意查询。 六、 其他 1、 所有样品由投标单位在按甲方通知后于2009 年 8 月 20 日前自行取回,如不按期搬走则视为赠送学院,不予退还。 2、 投标单位对因产品质量隐患所造成的任何事故负有永久的责任。 3、 最后确定为中标的投标单位须承诺:交付按订货计划供货家具总价10%的履约保证金,不得提出撤回投标,并在规定的时间内完成该项目,否则按违约论处,同意被甲方罚没全部履约保证金 4、 安装期间如有损坏我院的任何设备及物品需照价赔偿,安装过程中所用水电及食宿由投标单位自行负责。 5、 投标联系电话:86842284 联系人:赖老师、李老师 6、 本次招标的解释权归广东培正学院采购中心。 
附件一:上下双层铁架床 
附件二:办公电脑两用桌 广东培正学院采购中心 2010-7-21
|